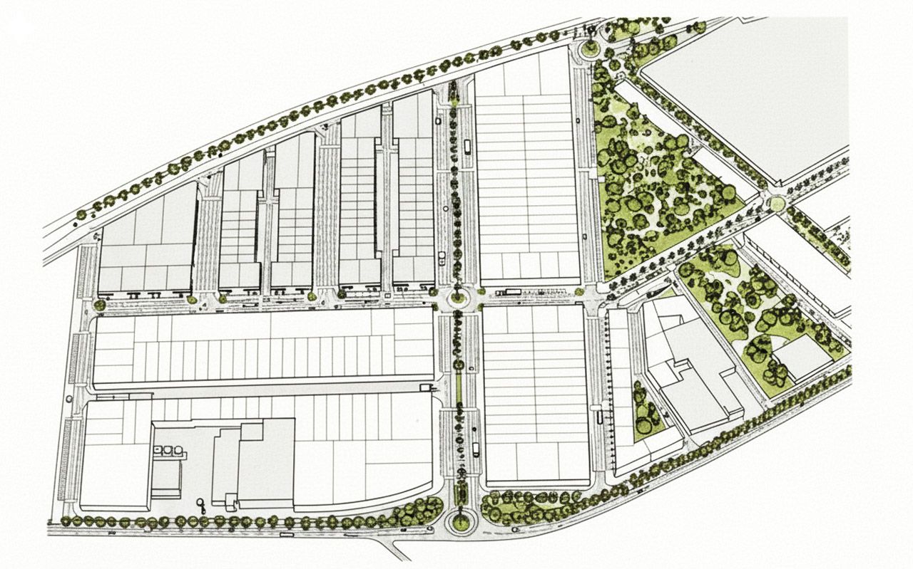
Estudio de detalle y Proyecto: Parque Industrial Itálica en Santiponce, Sevilla.

Situación

Sector LG P.P. 3, Parque Industrial Itálica.
Santiponce, Sevilla.
España.

Promotor

Ferroman Desarrollos Inmobiliarios Ubicalia

Año del proyecto

2005

Superficie

302.570 m²

Clasificación

-